Проект:
Барселона white

Берн
Бремен
минимализм
Отсекая всё лишнее, оставлять рациональное
план 1 этажа
104,4m(216.2)2
экспликация помещений
 
  • Прихожая:
  • Холл:
  • Тех.помещение:
  • Ванная:
  • Спальня:
  • Спальня:
  • Спальня:
  • Кухня-гостиная:

  • итого 1 этаж:

  • Вх.группа:
  • Навес для авто:
  • Терраса:
  • Крытая терраса:

  • итого:
  • 3,1m2
  • 15,1m2
  • 5,4m2
  • 4,8m2
  • 16,5m2
  • 12,1m2
  • 13,6m2
  • 33,8m2

  • 104,4m2

  • 3,6m2
  • 47m2
  • 48,6m2
  • 12,6m2

  • 216,2m2
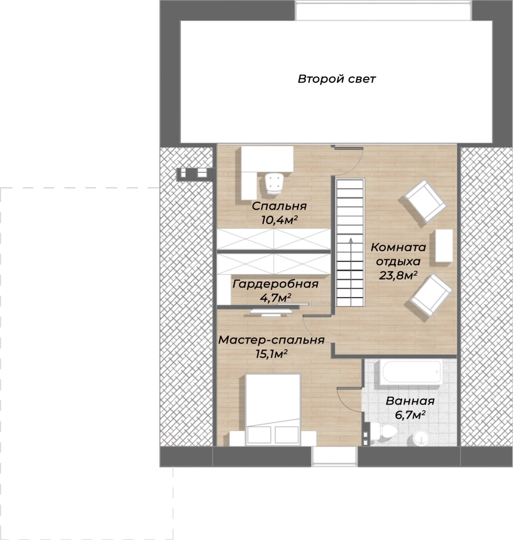
план 2 этажа
60,7m2
экспликация помещений
 
  • Комната отдыха:
  • Спальня:
  • Мастер-спальня:
  • Гардеробная:
  • Ванная:


  • итого 2 этаж:
  • 23,8m2
  • 10,4m2
  • 15,1m2
  • 4,7m2
  • 6,7m2


  •  60,7m2

благоустройство:

  • - Отмостка по периметру дома
  • - Забор по периметру
  • - Озеленение участка (газон+автополив)
  • - Скважина, септик Евролос
  • - Въездная зона, парковка (брусчатка)
  • - Ландшафтный дизайн

пирог стены:

  • • Керамический блок 440мм
  • • Шов кладки: Графитовый
  • • Облицовочный кирпич:
  • - Крёкшино (Донские зори)
  • - Гессен Вайн (KÖNIGSTEIN)
  • - Ливерпуль (Славинский)

калькулятор ипотеки

Финансирование в соответствии с нормами Ислама

Стоимость недвижимости
От 650 тыс.
До 20 млн.
Первоначальный взнос
От 450 тыс.
До 1.5 млн.
Срок ипотеки
От 1 года
До 30 лет
Ежемесячный платеж
650 000₽
Сумма по ипотеке
650 000₽
*Расчёт носит информативный характер. Точные условия вы получите после подачи пакета документов
Drag View Close play